Электродвигатель передней печки
-
автосмаил
Re: Электродвигатель передней печки
ребята в печку поставил моторчик от газели вошол по месту как родной работает идеально фото не умею выкладывать а то бы был фото отчёт
-
Power
- Супермодератор

- Всего сообщений: 6462
- Зарегистрирован: 19.06.2012
- Вод.стаж с: 2000
- Откуда: Moscow region, Ramensburg
- Авто: sharaban 98 7M8 ADY DBW GL бубен edition
Re: Электродвигатель передней печки
автосмаил, зарегистрируйся для начала, потом научим и фото вставлять
Ни хрена не починил. Так и езжу.
-
galcon
- Новичок
- Всего сообщений: 5
- Зарегистрирован: 16.04.2014
- Вод.стаж с: 1983
- Откуда: Щелково, Московской обл
- Авто: Galaxy 1999г, AFN, АКПП, 2-х зонный климат
- Возраст: 64
Re: Электродвигатель передней печки
Доброго времени суток!
Помогите, кто может)
Проблема такая:
перестал работать мотор передней печки.
Предохранители- целы, проверил.
Провода от аккумулятора на прямую на мотор- вертится.
"ежик" рядом с вентилятором (он на климате электронный) поменял- безрезультатно.
Реле, которое на 2 мотора св блоке реле-предохранителей ( 114 вроде, пишу по памяти) проверил, замыкает.
Задняя печка- моторчик вертится, быстрей-медленей при управлении с кнопки блока климата, все ок.
Форум перелопатил, и "Микроб" тоже, не нашел..
Вопрос- что такое еще может быть? Диагностику не делал, походу она может сказать только работает-нет..
Да.. при включении зажигания экран климата моргает, но это фреон вышел, до того, как моторчик перестал крутить тоже моргал..
Может есть еще реле какое? или отсутствие фреона в системе так сказалось?
Всю голову сломал уже ..
Помогите, кто может)
Проблема такая:
перестал работать мотор передней печки.
Предохранители- целы, проверил.
Провода от аккумулятора на прямую на мотор- вертится.
"ежик" рядом с вентилятором (он на климате электронный) поменял- безрезультатно.
Реле, которое на 2 мотора св блоке реле-предохранителей ( 114 вроде, пишу по памяти) проверил, замыкает.
Задняя печка- моторчик вертится, быстрей-медленей при управлении с кнопки блока климата, все ок.
Форум перелопатил, и "Микроб" тоже, не нашел..
Вопрос- что такое еще может быть? Диагностику не делал, походу она может сказать только работает-нет..
Да.. при включении зажигания экран климата моргает, но это фреон вышел, до того, как моторчик перестал крутить тоже моргал..
Может есть еще реле какое? или отсутствие фреона в системе так сказалось?
Всю голову сломал уже ..
-
11piligrim11
- Супермодератор

- Всего сообщений: 7544
- Зарегистрирован: 12.03.2013
- Вод.стаж с: 1995
- Откуда: г.Минск
- Авто: VW Sharan, 1.8 20V Turbo, AWC 2001 г.в. Мешалка
- Возраст: 48
Re: Электродвигатель передней печки
Вот диагностику сделать стоит. Возможно передний мотор заблокирован мозгами климы. Стоит сначала проверить.
Ни что не радует так, как то, что сделано собственными руками.
11piligrim11
11piligrim11
-
galcon
- Новичок
- Всего сообщений: 5
- Зарегистрирован: 16.04.2014
- Вод.стаж с: 1983
- Откуда: Щелково, Московской обл
- Авто: Galaxy 1999г, AFN, АКПП, 2-х зонный климат
- Возраст: 64
-
SharanUA
- Участник

- Всего сообщений: 107
- Зарегистрирован: 19.01.2014
- Вод.стаж с: 1987
- Откуда: Львов
- Авто: Sharan 96 1Z
Re: Электродвигатель передней печки
Пробуй "ежик" коротить, отсоединив его предварительно ясное дело (смотри схему что соединять, там толстые силовые и тонкий управляющий). Если не заработает - значит проводка где-то отконтачила. Я это проходил.
-
11piligrim11
- Супермодератор

- Всего сообщений: 7544
- Зарегистрирован: 12.03.2013
- Вод.стаж с: 1995
- Откуда: г.Минск
- Авто: VW Sharan, 1.8 20V Turbo, AWC 2001 г.в. Мешалка
- Возраст: 48
Re: Электродвигатель передней печки
galcon, конечно. И диагностируется, и даже настраивается. 
Ни что не радует так, как то, что сделано собственными руками.
11piligrim11
11piligrim11
-
galcon
- Новичок
- Всего сообщений: 5
- Зарегистрирован: 16.04.2014
- Вод.стаж с: 1983
- Откуда: Щелково, Московской обл
- Авто: Galaxy 1999г, AFN, АКПП, 2-х зонный климат
- Возраст: 64
Re: Электродвигатель передней печки
пробовал мерить напряжение на управляющем проводе , который к "ежику" но че-то не понятно, в каких пределах оно должно меняться, и мой китайский тестер изменения не уловил. Никто не сталкивался, в каких пределах напряжение управляющее должно меняться? И можно ли проверить , к примеру, кинув управляющее напряжение с заднего моторчика?
Вопрос к SharanUA, де не контачило?)
11piligrim11, посоветуй, какой шнурок заказать/купить, чтоб не дорого и хорошо
Добавлено спустя 30 минут 43 секунды:
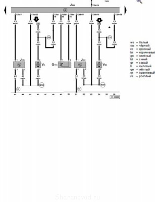
Сразу еще вопрос. Что такое 110 и 109 на схеме? (стрелочки)
Добавлено спустя 1 час 19 минут 17 секунд:
Торможу) "Указывает на наличие продолжения провода. число в квадрате указывает координату продолжения"
Вопрос к SharanUA, де не контачило?)
11piligrim11, посоветуй, какой шнурок заказать/купить, чтоб не дорого и хорошо
Добавлено спустя 30 минут 43 секунды:
Сразу еще вопрос. Что такое 110 и 109 на схеме? (стрелочки)
Добавлено спустя 1 час 19 минут 17 секунд:
Торможу) "Указывает на наличие продолжения провода. число в квадрате указывает координату продолжения"
-
SharanUA
- Участник

- Всего сообщений: 107
- Зарегистрирован: 19.01.2014
- Вод.стаж с: 1987
- Откуда: Львов
- Авто: Sharan 96 1Z
Re: Электродвигатель передней печки
У меня на самом ежике неуверенные контакты в подходящей проводке (папа или мама там непомню) мозг вынесли. Ежик тоже менял походу... С упр. сигналом от задней я бы не игрался - там на другом конце провода как-бы не микропроцессоры всякие живут. Пробуй исключить ежик - у него ведь есть режим "напрямую" - это когда двигатель отопителя получает все 13 и 4. Если ты вручную сымитируешь КЗ (минимальное сопротивление) ежика, и двиг печки заработает - значит, либо имеет место недополучение упр. сигнала от БУ климы, либо твои ежики дохлые. А если твое КЗ ежика не оживит двиг печки, значит где-то неконтакт. Тогда ищи плюсы и массы.
Но повторю, все "напрямую" надо делать осознанно.
Но повторю, все "напрямую" надо делать осознанно.
-
galcon
- Новичок
- Всего сообщений: 5
- Зарегистрирован: 16.04.2014
- Вод.стаж с: 1983
- Откуда: Щелково, Московской обл
- Авто: Galaxy 1999г, AFN, АКПП, 2-х зонный климат
- Возраст: 64
Re: Электродвигатель передней печки
Седня попробую напрямую кинуть, "+" исключив ежика)
На счет микропроцессоров. Не поленился скачал "эльзу" (27Гб, цук, кучу фильмов убить пришлось
) нашел схему посмотрел, понял, что схемы управления полностью идентичны переднего и заднего вентиляторов. Задний таким же ежиком управляется. 11piligrim11, не может клима блокировать вентилятор, немцы бы такой фигни не допустили бы
, иначе я ихний автопром уважать перестал бы
. Хотя посмотрим еще. проверим седня.
Спасибо всем, принимающим участие)
На счет микропроцессоров. Не поленился скачал "эльзу" (27Гб, цук, кучу фильмов убить пришлось
Спасибо всем, принимающим участие)
-
- Похожие темы
- Ответы
- Просмотры
- Последнее сообщение
-
- 5 Ответы
- 12046 Просмотры
-
Последнее сообщение ahrutsky
-
- 25 Ответы
- 25201 Просмотры
-
Последнее сообщение Максим1992
-
- 14 Ответы
- 7544 Просмотры
-
Последнее сообщение ahrutsky
-
- 10 Ответы
- 11138 Просмотры
-
Последнее сообщение slavaevgen
-
- 50 Ответы
- 39176 Просмотры
-
Последнее сообщение Deni
Мобильная версия