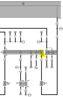
Случилось так, что возникли проблемы с контактной группой ЗЗ. Чтобы долго не рассказывать суть почему и из за чего - просто так уже случилось. При повороте ключа на фишке втягивающего если подключить лампочку - она горит. Но если подключен стартер - он не запускается. Как узнал, что на контактной группе просадка ? Подал прямой плюс при включенном зажигании (иммо дал добро и 185 реле включило зеленый светофор) вот в эту точку и стартер срабатывал
Получается, что 185 в порядке, а просадка идет на контактах ЗЗ. Выход какой? Или менять контактную группу или делать обход через доп реле. Но я нигде не могу найти как снять эту КГ с замка. И если покупать, то по какому номеру ее искать нужно?
Замок зажигания и просадка напряжения.
-
Автор темыYurec66
- Специалист

- Всего сообщений: 1423
- Зарегистрирован: 28.04.2016
- Вод.стаж с: 1984
- Откуда: РБ, Могилев
- Авто: Ford Galaxy 1.9 Tdi, 1999 г. AHU
- Возраст: 59
Замок зажигания и просадка напряжения.
"Каждому свойственно ошибаться" - сказал ёжик, слезая с кактуса.
-
jser
- Интересующийся

- Всего сообщений: 24
- Зарегистрирован: 10.11.2017
- Вод.стаж с: 1990
- Откуда: Беларусь. Кричев
- Авто: vw sharan,2001,1,9auy
- Возраст: 54
Замок зажигания и просадка напряжения.
Внимательно осмотрите замок вокруг, должен быть винтик с потаем (т.е. без шляпки) толщиной с спичку.
-
Автор темыYurec66
- Специалист

- Всего сообщений: 1423
- Зарегистрирован: 28.04.2016
- Вод.стаж с: 1984
- Откуда: РБ, Могилев
- Авто: Ford Galaxy 1.9 Tdi, 1999 г. AHU
- Возраст: 59
Замок зажигания и просадка напряжения.
Нету никаких винтиков. Сегодня рассмотрел и увидел, что на защелках держится
Вот думаю разобрать его попытаться если получится и почистить контакты. На первый взгляд ничего особо страшного на них нету, чтоб нагар какой. Но надо вытащить полностью и обозреть внимательно. Они вообще то вытаскиваться должны(чтобы не сломать) ? В магазине спрашивал - только оригинал. На разборке как то стрёмно брать такой узел.
Если кто знает, подскажите каково назначение контакта SU в замке? Он задействуется, если ключ утопить в гнездо глубже до упора.
Походу не разбираются эти контакты, сверху стопорки развальцованы слегонца 
"Каждому свойственно ошибаться" - сказал ёжик, слезая с кактуса.
-
S4fr0n
- Участник

- Всего сообщений: 70
- Зарегистрирован: 12.05.2018
- Вод.стаж с: 2018
- Откуда: Конаково, Тверская область
- Авто: SEAT Alhambra, 1999 г.в., ADY 2,0 115 л.с.
- Возраст: 43
Замок зажигания и просадка напряжения.
Нет там ни кокого винтика. Там две пластиковые застежки. Одну видно, а другая сзади. Снимал позавчера. Хоть и тема давнишьняя. Пишу может кому пригодиться
-
- Похожие темы
- Ответы
- Просмотры
- Последнее сообщение
-
- 0 Ответы
- 1302 Просмотры
-
Последнее сообщение Сергей 1973
-
- 30 Ответы
- 24839 Просмотры
-
Последнее сообщение Power
-
- 9 Ответы
- 6859 Просмотры
-
Последнее сообщение SHARAN 32rus
-
- 30 Ответы
- 33558 Просмотры
-
Последнее сообщение Ranospants
-
- 14 Ответы
- 12946 Просмотры
-
Последнее сообщение kanol
Мобильная версия